Client: Kent Worldwide

Timeline: 2024 – 2025

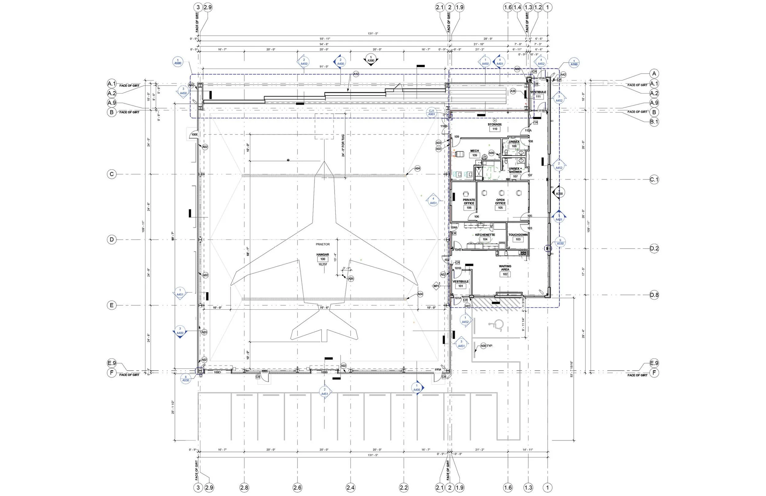
Project Size: 13,000 (SF)

Location: 5701 US-61, Muscatine, IA 52761

Geo Location: 41.36348084234536, -91.14458376451981

Market Sector: Industrial

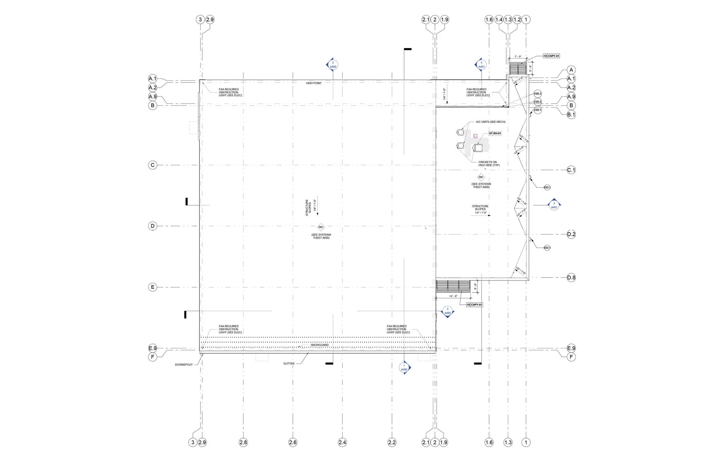
Property Type: Aviation – Aircraft Hangar

Construction Type: New Construction

Project Delivery Method: Design-Build

Company: Ryan Companies

Consultants: Bolton & Menk (Civil), VAA Engineering (Structural), Crawford Company (MEP)

Website: Kent Worldwide

Project Overview: Kent Worldwide, formerly Kent Corporation, is a global leader headquartered in Muscatine, Iowa, advancing agriculture‑based innovation across food, beverage, industrial ingredients, pet brands, and food services. With a commitment to shaping markets and enriching lives worldwide, Kent Worldwide continues to expand its global footprint. The aircraft hangar project reflects this forward‑looking vision, strengthening infrastructure to support international operations and reinforcing the company’s drive for innovation, connectivity, and global impact.

Next
Next

TVS Supply Chain Solutions - Waterloo (Industrial)