Client: Meta (Facebook)

Timeline: 2020 – 2021

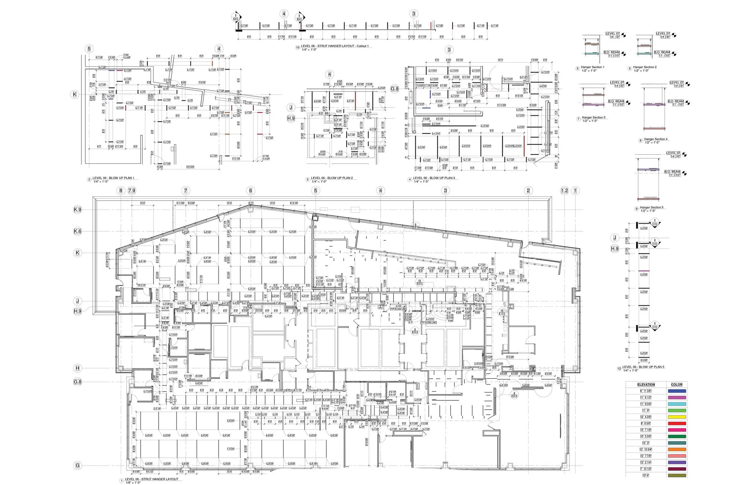
Project Size: 23,000 (SF)

Location: 1900 16th St, Denver, CO 80202

Geo Location: 39.75350900962715, -105.00325392057135

Market Sector: Commercial

Property Type: Office – Class A – Mid-Rise

Construction Type: New, Rebuild/Remodel

Project Delivery Method: VDC (Virtual Design and Construction)

Company: VIATechnik

Contractor: Sturgeon Electric Company

Website: Meta | Social Metaverse Company

Project Overview: META, formerly Facebook, expanded its downtown Denver office by 23,000 square feet, adding to its existing 47,000. The growth required upgraded infrastructure, advanced equipment, and modern facilities designed to support a dynamic, innovative workplace. This expansion underscores META’s commitment to investing in Denver while fostering a cutting‑edge environment that promotes collaboration and future growth.

Previous
Previous

Nokia - Sunnyvale (Office - Class A)

Next
Next

Major League Soccer - St. Louis SC (Sports - Stadium)