Lamb Weston Boardman Satellite View

Client: Lamb Weston

Timeline: 2023 – 2024

Project Size: 408,329 (SF)

Location: 600 NE Columbia Ave, Boardman, OR 97818

Geo Location: 45.844772587144746, -119.68173589144958

Market Sector: Industrial

Property Type: Food & Beverage – Refrigeration/Cold Storage

Construction Type: New Construction, Rebuild/Remodel

Project Delivery Method: Design-Build

Company: Ryan Companies

Project Team: Ryan AE (Architectural), FA Engineering (Civil, Structural, Mechanical, Plumbing), Kemper Northwest Inc (Refrigeration), Southland Industries (Electrical), Viking Automatic Sprinkler (Fire Protection), Moon Security (Security)

Website: Lamb Weston | Premier Frozen Potato & Fries

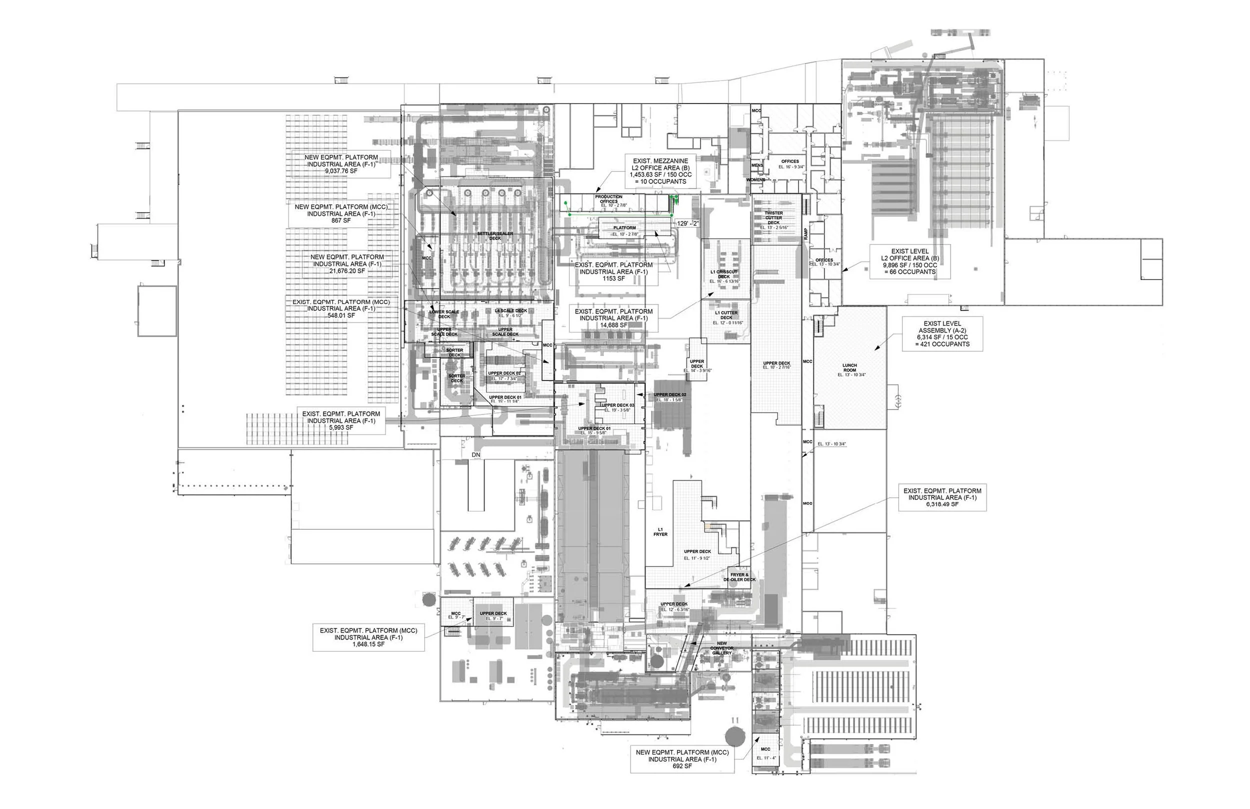
Project Overview: Lamb Weston, a global leader in frozen potato products, supplies iconic fast‑food brands including McDonald’s and Chick‑fil‑A. To expand capacity at its Boardman, Oregon, distribution center, the company designed three strategic additions—an office/break room, fryer building, and ingredient storage—while planning future upgrades to ingredient mixing and packaging/distribution areas. These enhancements strengthen operational efficiency, support growth, and reinforce Lamb Weston’s commitment to delivering quality products worldwide.

Lamb Weston Boardman 3D Model Digital Twin
Lamb Weston Boardman 3D Model Digital Twin
Lamb Weston Boardman 3D Model Digital Twin
Lamb Weston Boardman 3D Model Digital Twin
Previous
Previous

TVS Supply Chain Solutions - Waterloo (Industrial)

Next
Next

Precision Planting (Industrial)