Client: Lamb Weston

Timeline: 2023-2024

Project Size: 408,329 SF

Location: 600 NE Columbia Ave, Boardman, OR 97818

Property Type: Industrial

Program: Distribution + Food Processing

Firm: Ryan Companies

Role: Senior Technical Designer

Website: Lamb Weston | Premier frozen potato & fries

Project Overview:

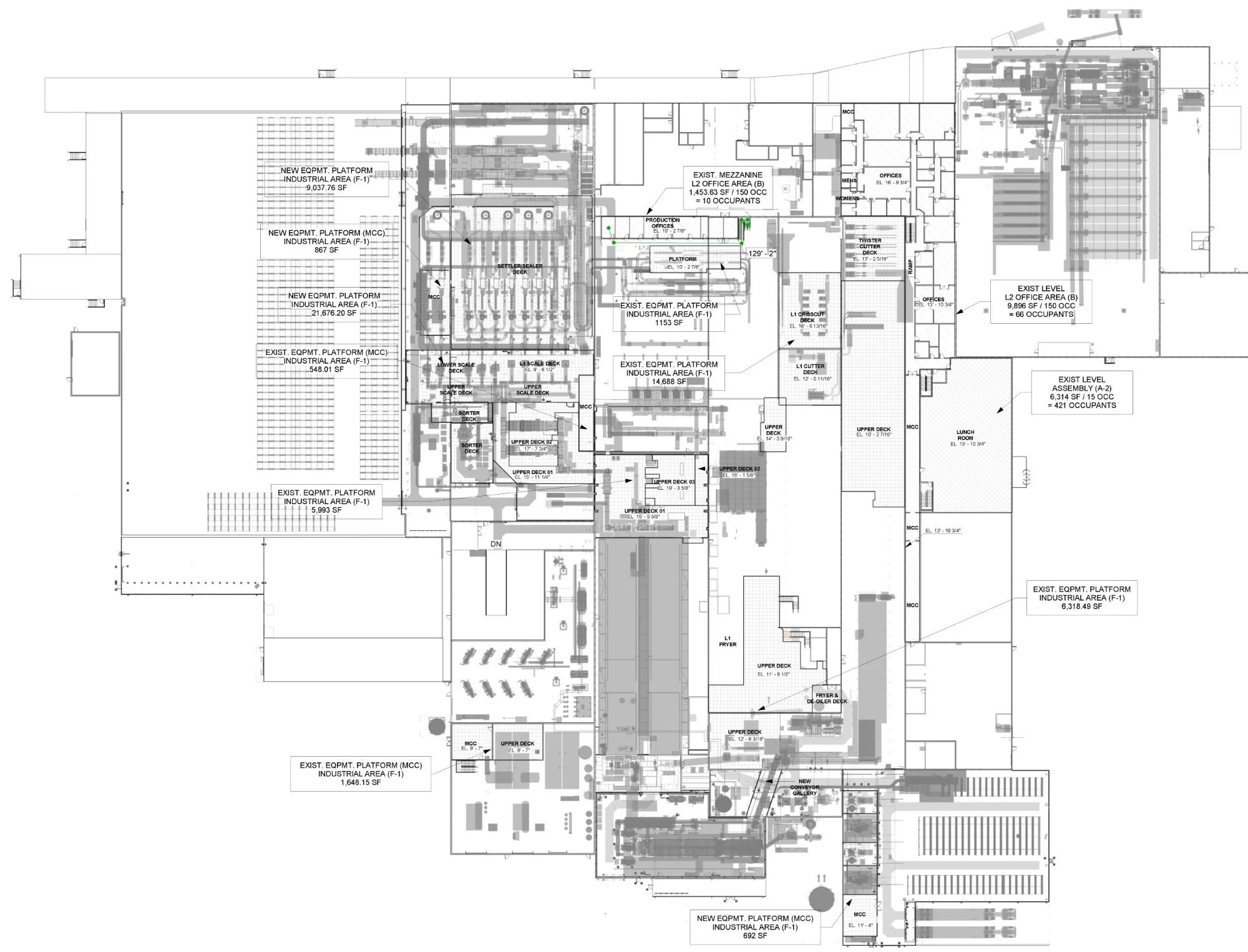
The development of a LOD 300 model for the Lamb Weston facility in Boardman represents a detailed phase in the building's lifecycle, encompassing precise geometric information and specific sizes, shapes, and components necessary for construction documentation and coordination among different disciplines. This existing one-story potato processing distribution center, known for its significant expansions to enhance production capabilities, is set to evolve further with three new additions. These enhancements will likely continue to support Lamb Weston's growth and commitment to the region, reflecting the company's strategic positioning for both domestic and international market expansion.

Lamb Weston Boardman Exterior View
Lamb Weston Boardman 3D Model Digital Twin
Lamb Weston Boardman 3D Model Digital Twin
Lamb Weston Boardman 3D Model Digital Twin
Lamb Weston Boardman 3D Model Digital Twin
Lamb Weston Boardman 2D Plan
Lamb Weston Boardman 2D Plan
Lamb Weston Boardman 3D Model Digital Twin
Lamb Weston Boardman 3D Model Digital Twin
Lamb Weston Boardman 3D Model Digital Twin
Lamb Weston Boardman 3D Model Digital Twin
Lamb Weston Boardman 3D Model Digital Twin
Lamb Weston Boardman 3D Model Digital Twin
Next
Next

Precision Planting